Projet de convoyeur AT100 Power & Free Range en cours
24
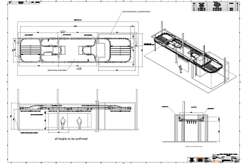
Il s'agit d'un projet récent que nous sommes en train de concevoir et qui sera bientôt fabriqué en vue de son installation en mai. Le convoyeur est un modèle AT100 de la gamme Power and Free, avec une capacité de charge de 100 kg par chariot. La configuration à double barre de charge offre une capacité de charge de 200 kg pour des produits jusqu'à 3 000 mm de longueur, 2 100 mm de hauteur et 200 mm de largeur, avec une rotation d'indexation à 360°. Le système offre une conception ultra-efficace et compacte grâce à la fonctionnalité Power and Free et au déplacement latéral à l'intérieur du four et de la zone de chargement. Plus d'informations à venir.



#AmberIndustries #Convoyeurs #SystèmesDeConvoyage #SystèmesDePalettes #ConvoyeursÀGravité #ConvoyeursMoteurs #RouleauxÀBande #ConvoyeursÀArbreDeTransmission #ConvoyeursÀChaîne #ConvoyeursÀLattes #ConvoyeursAéroportuaires #ConvoyeursDeTri #ConvoyeursDeTransfert #ConvoyeursAériens #ConvoyeursRoyaumeUni #Manutention
Other Articles
Le Sidetrack 60 est protégé pour un fonctionnement plus propre et plus fluide.
22
Venez visiter Amber Industries au salon Paint Expo 2026, hall 2, stand 2242
14
L'avantage technique du Sidetrack 60 : conçu pour une disponibilité maximale
2
Venez visiter Amber Industries au salon Paint Expo 2026 !
2
Amber Industries expose à Paint Expo 2026
18
Données techniques publiées pour les convoyeurs à chaîne aériens
20
Meilleurs vœux de la part d'Amber Industries
15
Systèmes de contrôle pour l'automatisation des convoyeurs aériens
4
Gamme MCM Powertrack d'Amber Industries
4
Systèmes de convoyeurs MCM Freetrack : focus
13